Share:
Description
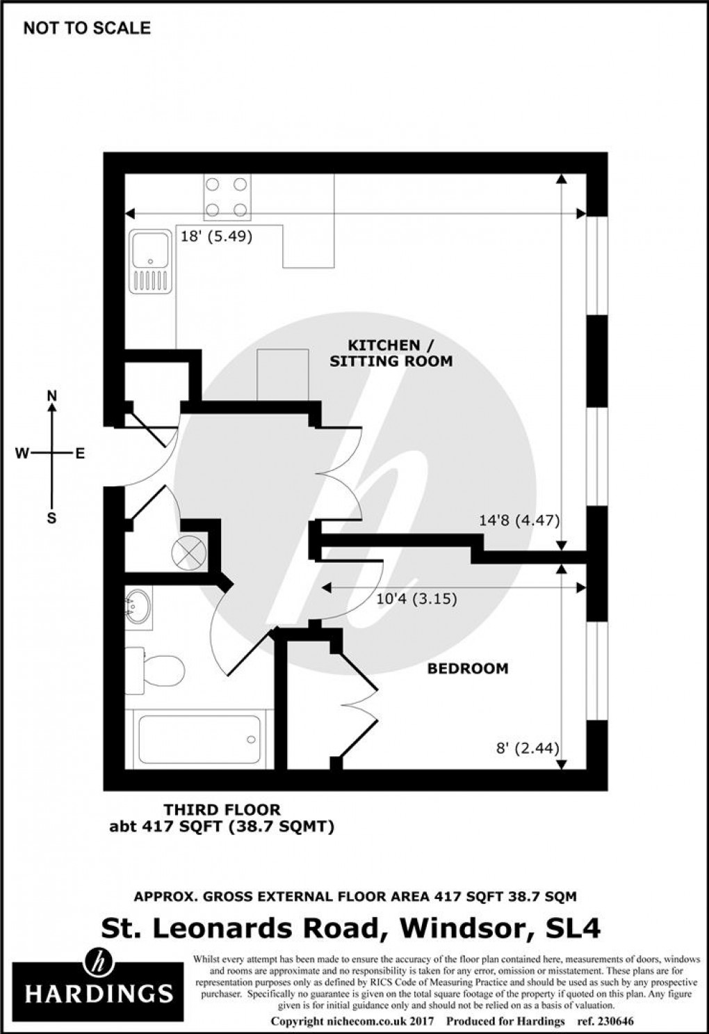
- One Bedroom Apartment
- No Onward Chain
- Open plan kitchen/living room
- Underground Allocated Parking
- Ample Visitor Parking
- Gated Development
- Lift Access
- Moments from Windsor Town Centre
An exciting opportunity to purchase a spacious one double bedroom apartment. The property is situated within the extremely popular, secure gated development, of Knights Place, all within a short distance to Windsor Town Centre The property comprises spacious reception dining room, fitted kitchen and a family bathroom. It also benefits from underground, allocated parking and attractive communal grounds. The property provides easy access to all of Windsor's major transport links, including the M4, M40, M25, and Heathrow Airport, as well as two mainline stations. The property is offered to the market chain free.
Floorplan
