Share:
Description
- Ground Floor Maisonette
- Stylish Interior
- Backing Onto Delightful Communal Greens
- South-Facing Courtyard Garden
- Modern Integrated Kitchen
- Windsor Town Centre
- Rear/Side Access
- Exposed Brickwork
- Period Features
- Permit Parking
A charming and stylish 1 bedroom ground floor period maisonette located in a popular residential area in Windsor Town Centre, just a short walk to both railway stations with mainline connections to London (Waterloo & Paddington) and the vast array of bars and restaurants that Windsor has to offer. Featuring a superb south-facing courtyard garden perfect for 'al fresco' dining, the property has been refurbished and boasts exposed brickwork and period features.
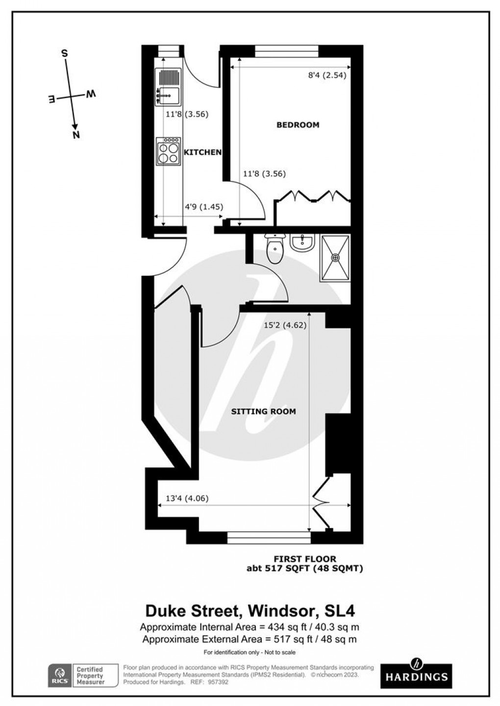
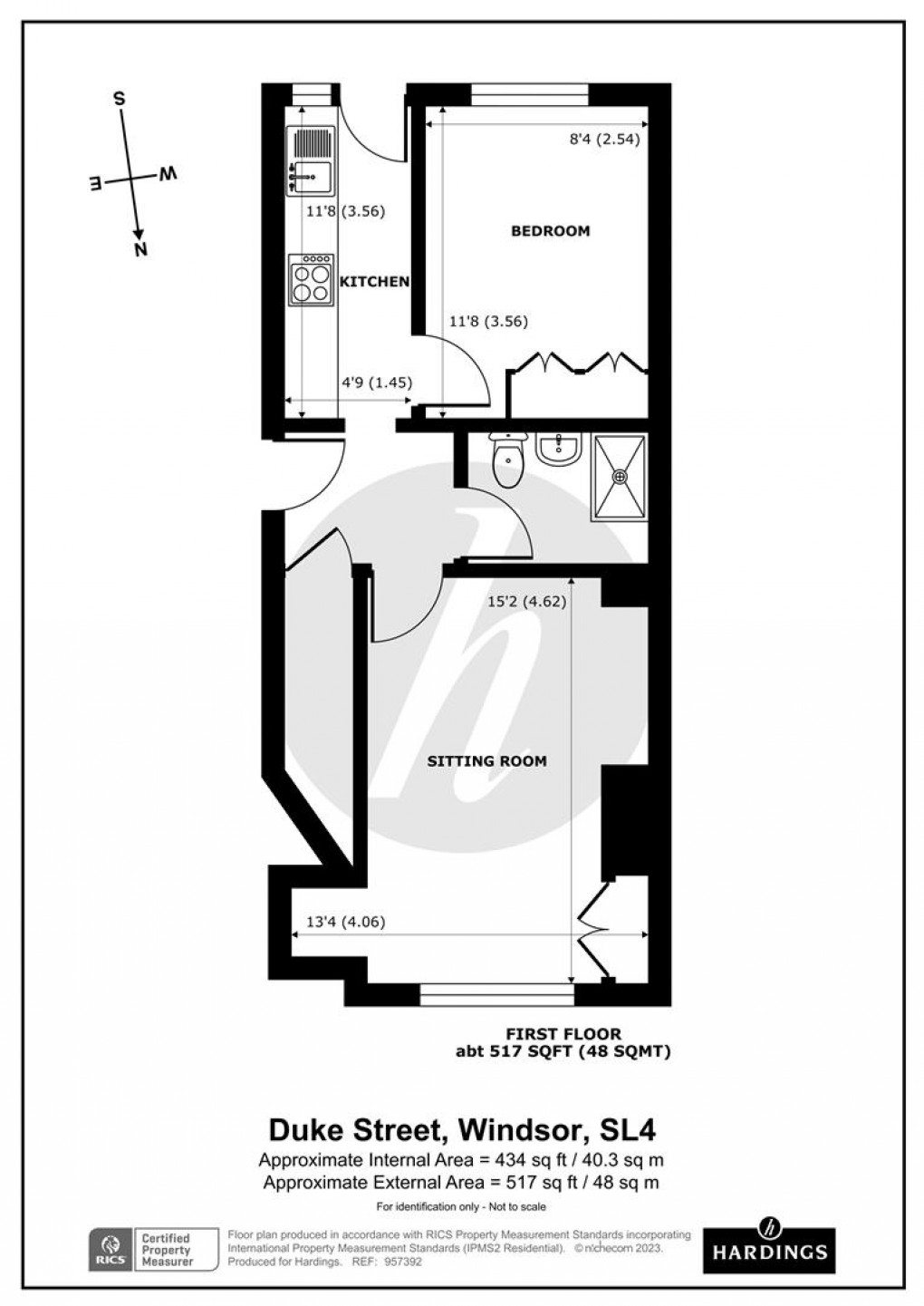
Floorplan
