Share:
Description
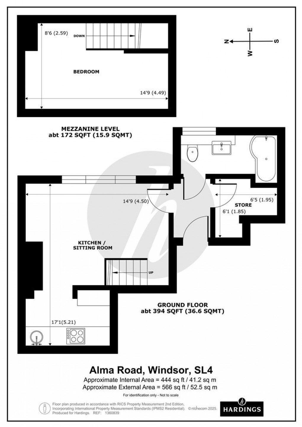
- Studio Flat with Mezzanine Bedroom
- Bathroom
- Allocated Parking
- Gated Development
- Windsor Town Centre
- Approx. 110 Year Lease
A beautifully presented and spacious studio flat with mezzanine bedroom, located in an attractive gated development in Windsor town centre. Further benefits include, allocated parking for 1 car, storage cupboard and 110 year lease.
Floorplan
