Share: 
										Description
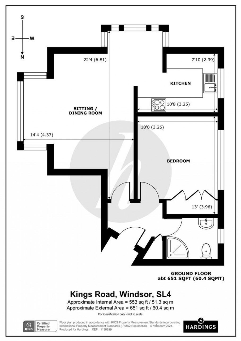
- Ground Floor Flat
 - Golden Triangle
 - 1 Allocated Off Street Parking & 2 Visitor Spaces
 - Own Entrance
 - Built in Storage
 - Immaculate Condition Throughout
 - No Chain
 - Long Lease (930 Years)
 
A beautifully presented ground floor apartment, with its own entrance, located within walking distance to the shops, restaurants, cafes and transport links to London. Offering spacious, light and well thought out accommodation, the property further benefits from a spacious dual aspect reception/dining area, allocated off street parking and no onward chain.
Floorplan
												