Share:
Description
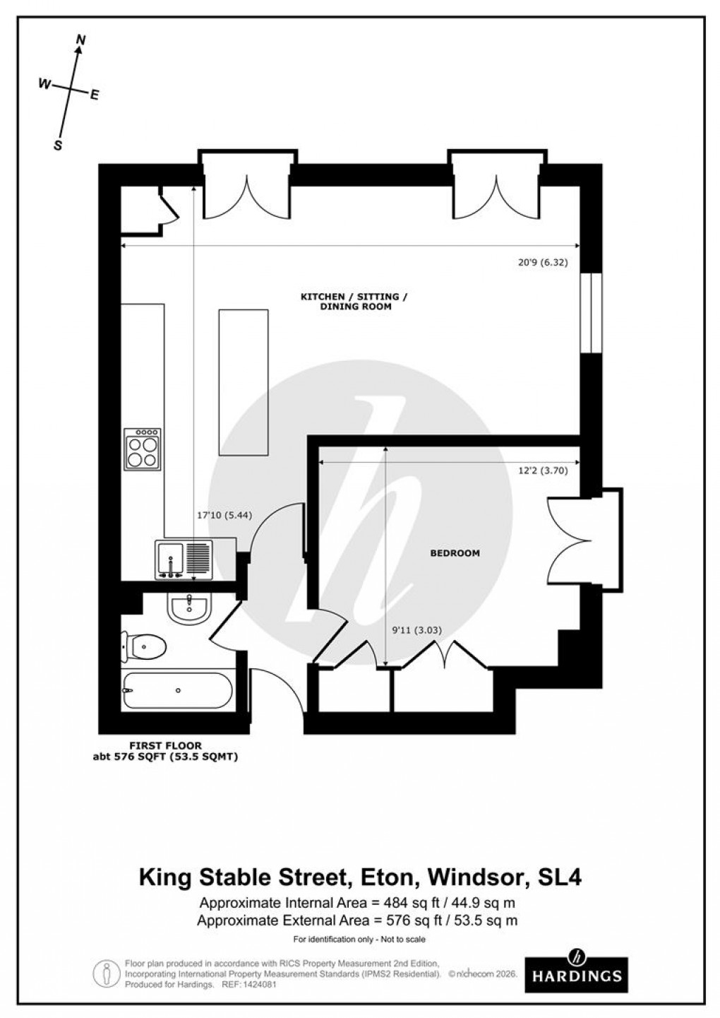
- One Bedroom Apartment
- Allocated & Visitor Parking
- Quiet Location
- Modern Integrated Kitchen & Breakfast Bar
- Dual Aspect Living Area
- First Floor
- Juliet Balconies
- Close to Amenities
A well-presented one-bedroom first floor apartment, ideally situated in a quiet location in Eton, within easy reach of local amenities. The property features a bright and spacious dual aspect living area, allowing for plenty of natural light throughout, along with a modern integrated kitchen complete with a breakfast bar. The bedroom is well-proportioned, and the apartment also benefits from juliet balconies. Further benefits include allocated parking, visitor parking, and a convenient position close to shops, transport links, and the wider amenities of Eton and Windsor.
Floorplan
