Share:
Description
- Semi-Detached Home
- Off Street Parking
- Quiet Residential Road
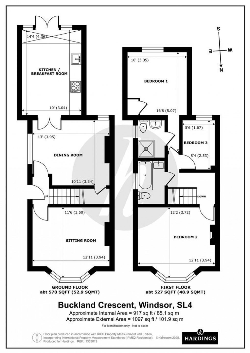
- Front Reception Room
- Dining Room
- Eat in Family Kitchen
- Private South Facing Garden with Side Access
- No Onward Chain
- Potential to Extend (STPP)
A spacious three-bedroom semi-detached home featuring a front reception room, a separate dining room, and an eat-in family kitchen with patio doors opening onto a south-facing private garden. The property is ideally located close to local amenities, excellent transport links, and within the catchment area for highly regarded schools. Additional benefits include off-street parking and no onward chain.
Floorplan
