Share:
Description
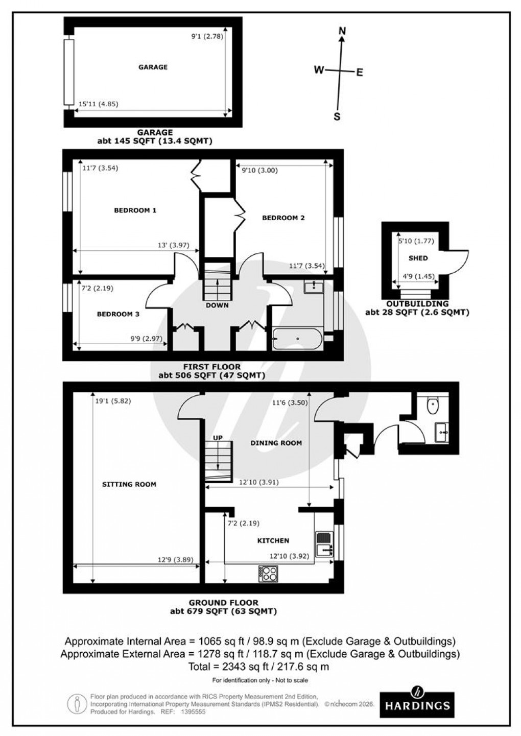
- Three Bedroom Terrace Property
- Separate Modern Integrated kitchen
- Dining Room
- Bright Reception Room
- Downstairs Cloakroom
- Private Garden
- Enclosed Front Garden
- Gated Development
- Share of Freehold
- Sought After Location
A well-presented three bedroom home situated in a popular gated development adjacent to the Long Walk, just a short distance from the High Street, shops and train stations. The property includes a modern kitchen with a bright, airy living room overlooking a good-sized private garden. There is resident and visitor parking in the development controlled via permits and this property also has the added benefit of a garage.
