Share:
Description
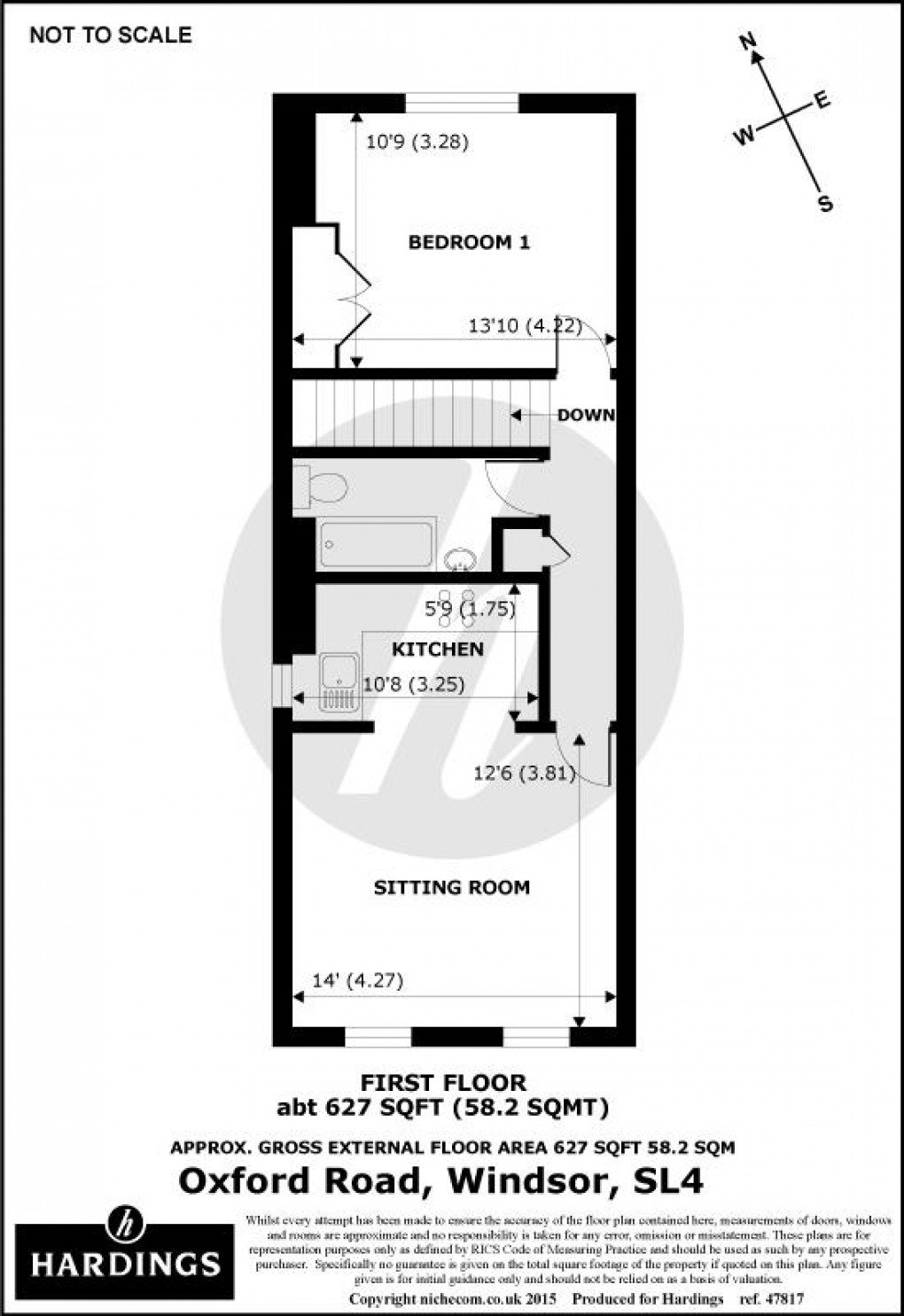
- 1 Double bedroom
- Modern kitchen
- Sitting room
- Walk-in shower
- Furnished
- Small patio area
- Off-road parking for 2 cars
- Close to town centre
- Available from 22 April
A well presented one bedroom maisonette situated in a prime location in Windsor town centre, with easy access to shops, bars, restaurants and excellent transport links to London. The property comes with off road parking and a small patio area. Furnished. EPC:C. Council Tax Band C. Two off road parking spaces.
