Share:
Description
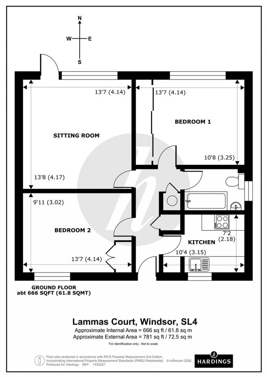
- Two bedroom apartment
- Close to amenities
- Private courtyard garden
- Modern kitchen
- Ground floor
- Permit parking
- Council Tax Band D
- EPC D
- Opportunity to acquire a Share of the Freehold
A modern and very well-presented ground floor apartment located in a popular development just a moments' walk from the shops, restaurants and transport links in Windsor town centre. Offered to the market with the opportunity to acquire a share of the freehold, the property further benefits from a private garden and resident's parking. No onward chain.
Floorplan
