Share:
Description
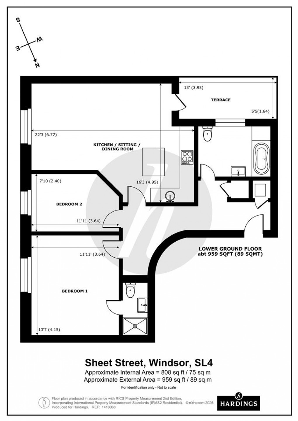
- Two Double Bedrooms
- Open Plan Living
- Integrated Siemans Appliances in Kitchen
- Two Bathrooms
- Secure Off Street Allocated Parking
- No Onward Chain
- Immaculate Condition Throughout
- Lift Access
- Private Storage Room
- Private Courtyard
Located in Hogarth House on Sheet Street, just moments from Windsor Town Centre, this well-presented two double bedroom apartment offers modern, low-maintenance living in a highly convenient setting. The property features a spacious open plan living area and a contemporary kitchen with integrated Siemens appliances, two double bedrooms and two bathrooms - one being en-suite. Presented in immaculate condition throughout, the apartment also benefits from secure allocated off-street parking, a private storage room and a private courtyard. Offered to the market with no onward chain. An excellent central Windsor home within easy reach of shops, restaurants and transport links.
Floorplan
