Share:
Description
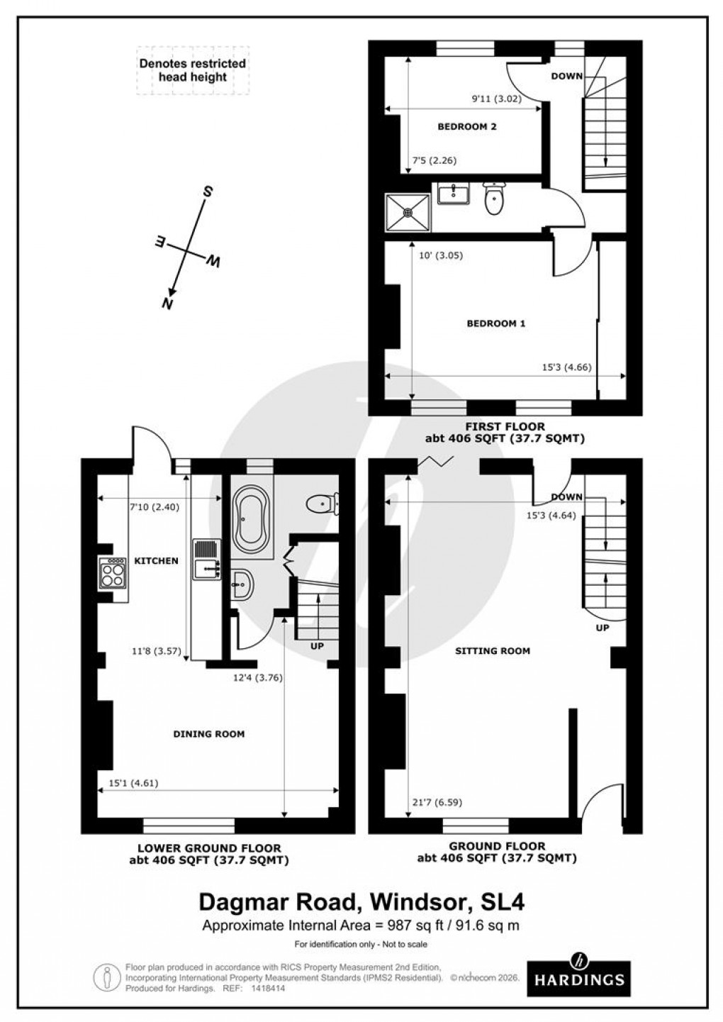
- Two Bedrooms
- Potential to Extend (STPP)
- Two Bathrooms
- Modern Kitchen
- Town Centre Location
- Quiet One Way Residential Road
- Private South Facing Garden
This charming two-bedroom, period home located on a quiet one-way residential road moments from Windsor town centre, benefits from two bathrooms and is arranged over three floors. This home is modern throughout and has potential to extend further (STPP). The property includes an open-plan kitchen diner with a smart kitchen, a separate reception on the raised ground floor with a real log fire and a private south facing garden with decking.
Floorplan
