Share:
Description
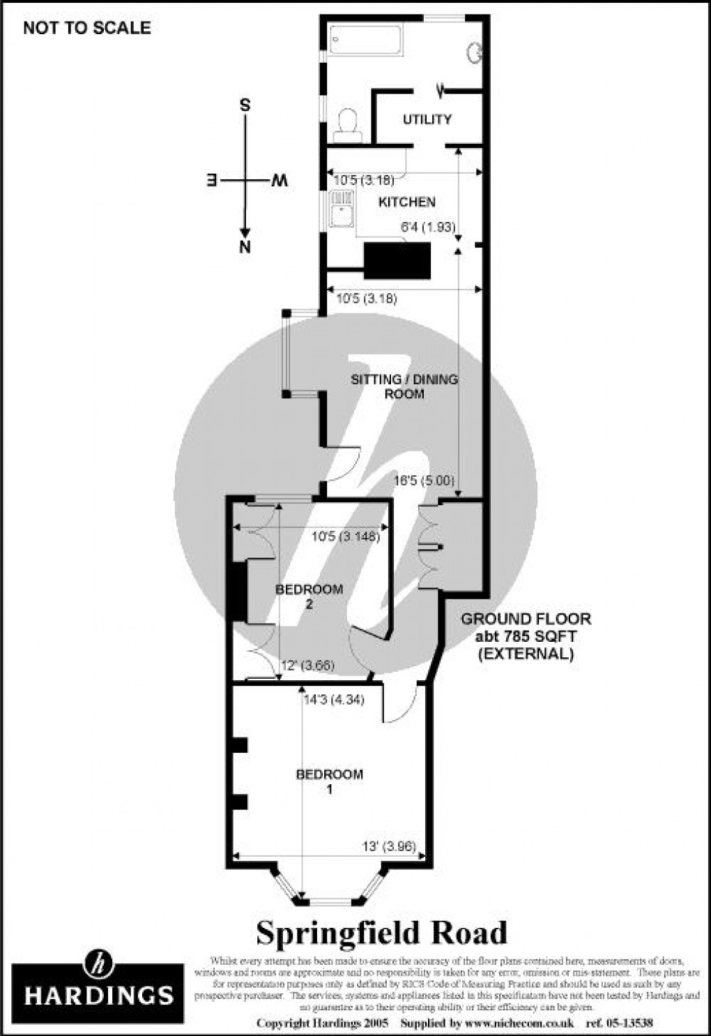
- 2 Double Bedrooms
- Modern Kitchen and Bathroom
- Living/Dining Room
- Utility Area
- Private rear garden
- Ground Floor with private entrance
- Unfurnished
- Town Centre Location
- On-street parking available
- Available mid-late february
An unfurnished ground floor conversion apartment which has been renovated throughout and offers the benefit of a small garden.
Floorplan
