Share:
Description
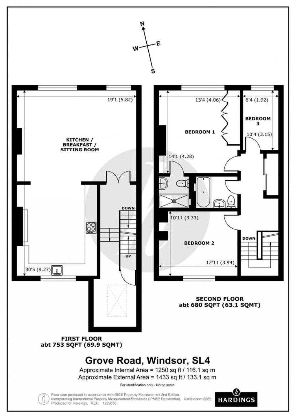
- 3 Bedroom Penthouse
- 2 Bathrooms (1 x En-suite)
- Open Plan Kitchen/Breakfast Room/sitting Room
- Wonderfully High Ceilings
- Period Features
- Furnished to a high standard
- Available Now
- Town Centre Location - Golden Triangle
- Short Walk to Mainline Rail Links to london & Local Amenities
- Permit Parking
A beautifully presented and wonderfully light 3 bedroom flat arranged over the top floors of a converted period townhouse offering spacious, open plan living, complemented with a blend of period features and contrasted with a contemporary finish. Occupying a prime residential location, in Windsor's golden triangle, the property is just a short stroll to the mainline rail links to London (Waterloo and Paddington) and with close proximity to Elizabeth Line, local restaurants, shops and cafes.
Floorplan
