Share:
Description
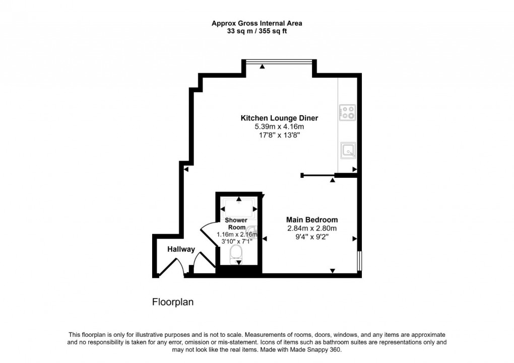
- Spacious Stuido Apartment
- Modern shower room
- Fourth floor
- Town Centre Location
- Moments from The Long Walk
- Part Furnished
- Available as soon as possible
- Intergrated White Goods
- Large tilt and turn windows
- Council Tax Band - B
A top floor Studio suite situated next to The Long Walk and moments from the Town Centre.
Floorplan
