Share:
Description
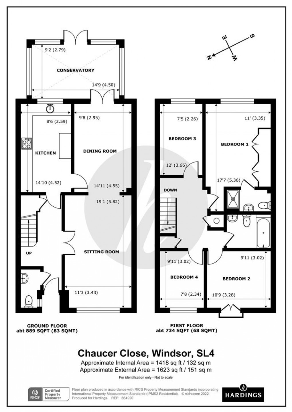
- 4 bedroom modern house
- Open plan reception rooms
- Popular development
- En-suite master bedroom
- Walking distance to town centre
- Garden room
- Close to Long Walk and Windsor Great Park
- Freehold
- Garage & gated allocated parking space
- NO CHAIN
A beautifully presented four-bedroom modern home in a highly sought after development, just a short stroll from the iconic Long Walk and Windsor town centre. Set within well-maintained gardens, this stylish property boasts a bright contemporary interior and a low maintenance, south-easterly facing garden. Additional benefits include a garage, an allocated parking space and excellent transport links via mainline rail to London (Paddington & Waterloo). *Offered with no onward chain*.
Floorplan
