Share:
Description
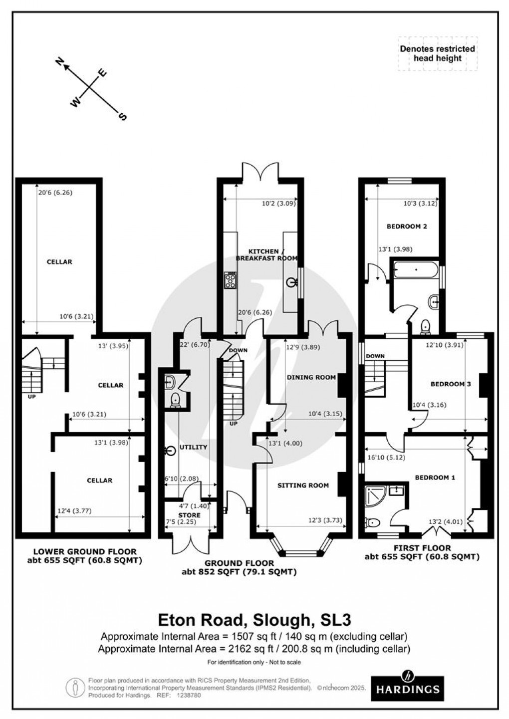
- Semi-Detached 3 Bedroom Period Property
- Side Access
- Driveway Parking
- Cellar
- Kitchen/Breakfast Room
- Utility Room & WC
- Close to Local Amenities and direct rail link to London Waterloo
- 2 Bathrooms (1 x ensuite)
- Approx 100' Landscaped Garden
- CHAIN FREE
A beautiful 3 bedroom semi-detached period property located in Datchet Village, just a short walk to local shops, cafes and direct rail link to London Waterloo. Benefiting from driveway parking and potential to extend, this charming property further benefits from an abundance of period features, 100' landscaped garden and utility room with separate storage room. The property benefits from no chain.
Floorplan
