Share:
Description
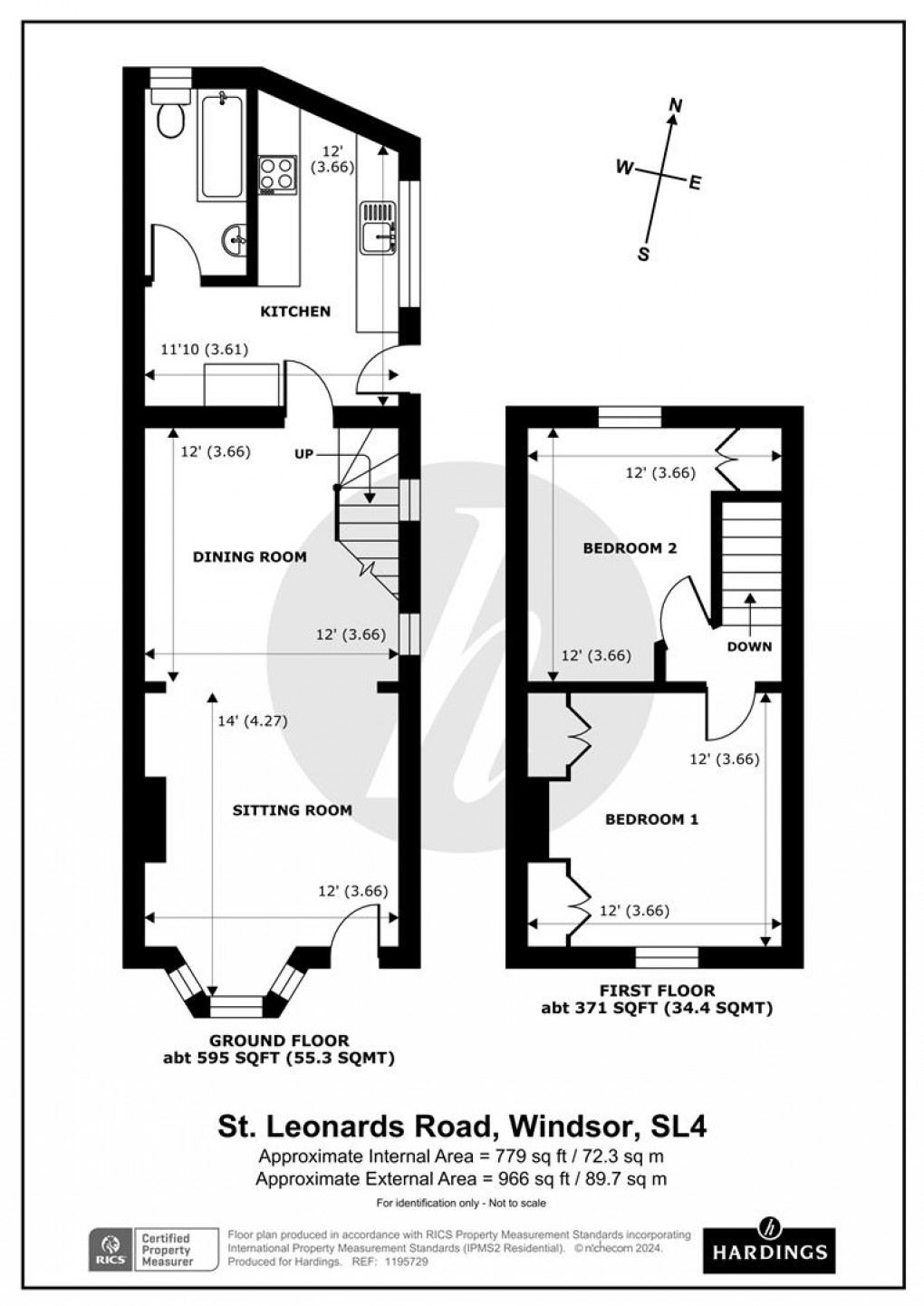
- Charming Two Bedroom House
- Gated Off Street Parking
- Private Garden
- Separate Kitchen
- Double Reception Room
- End Terrace House
- No Onward Chain
- Short Walk to Windsor Great Park
- Close Proximity to Local Amenities
- EPC Rating D
A charming and well presented 2 bedroom end of terrace cottage with the added benefit of off-street parking. Located close to local amenities, Windsor Great Park and Windsor town centre, the property further benefits from a low maintenance garden and no onward chain.
Floorplan
