Share:
Description
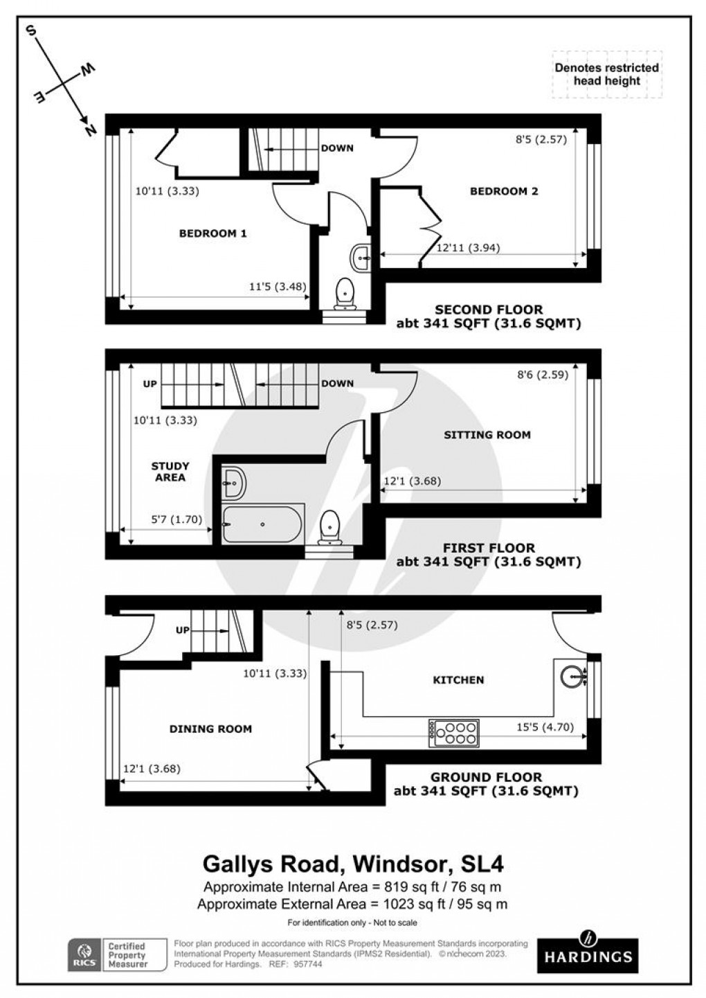
- 2 Bedroom End of Terrace Townhouse
- Spacious Open Plan Kitchen/Dining Room
- Off Street Parking for Several Cars
- Low Maintenance Courtyard Garden
- Ideally Positioned for Local Amenities
- Light &Well Presented Accommodation
A light and well presented end of terrace 2 bedroom townhouse offering flexible living accommodation arranged over 3 floors. Ideally located for access to local amenities, the property further benefits from off street parking for several cars, low maintenance courtyard garden and spacious open plan kitchen/dining room.
Floorplan
