Share:
Description
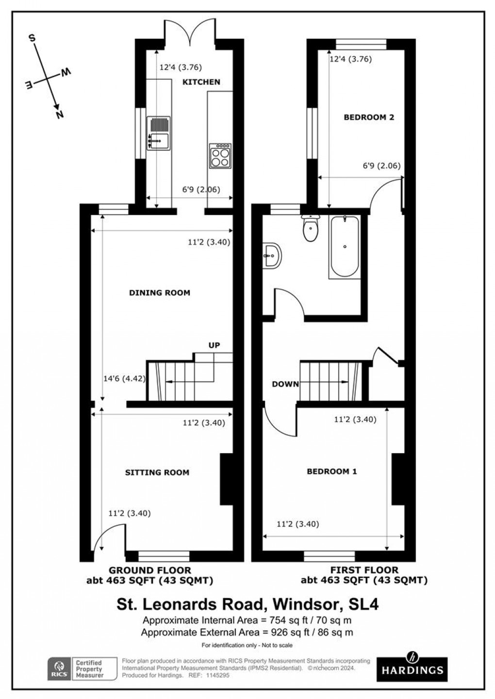
- Period Property with Original Features
- 2 Double Bedrooms
- Views Over Windsor Great Park
- South Facing Garden with Separate Summer House
- Potential for Extensions STPP
- Short Walk to Local Amenities & Windsor Town Centre
- No Onward Chain
- On Road Parking
A well presented & charming two bedroom period terraced house, with sweeping views over Windsor Great Park and cemetery, located just a short walk to Windsor's shops, restaurants, cafes and mainline rail links to London, and close proximity to Windsor Great Park. Benefitting from a low maintenance landscaped south facing garden, the property features a well proportioned reception room and dining room, 2 double bedrooms, potential to extend (STPP) and no onward chain.
Floorplan
