Share:
Description
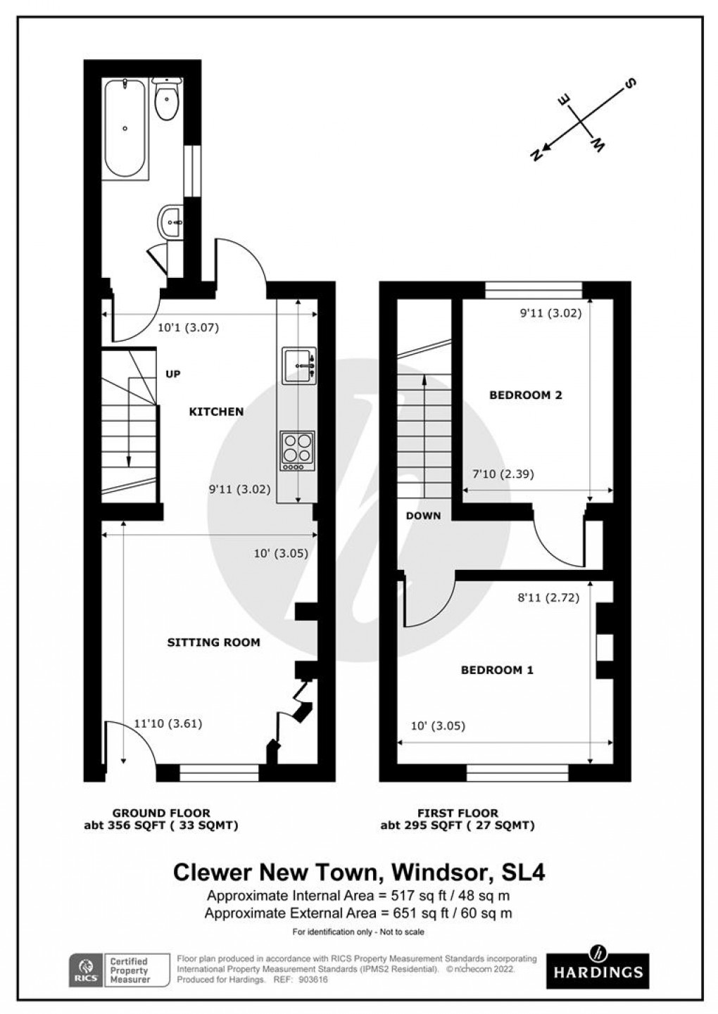
- Freehold Semi-Detached Cottage
- Period Property
- 2 Bedrooms
- Recently Refurbished
- Off Street Parking
- Close to Windsor Town Centre
- Immediate Access to Imperial Park
- South Facing Garden
- Potential to Extend (STPP)
- NO ONWARD CHAIN
A charming Victorian 2 bedroom semi-detached cottage occupying a position on a quiet cul de sac just a short walk from Windsor Town Centre with its vast array of shops, restaurants and transport links to London. The property has been recently refurbished and features a generous south facing garden. Further benefits include an open plan kitchen/reception room, potential to extend (STPP), off-street parking and immediate access to Imperial Park. The property is offered with no onward chain. Viewing day by appointment only Saturday October 8th. 1pm-3pm.
Imperial Park
Floorplan
